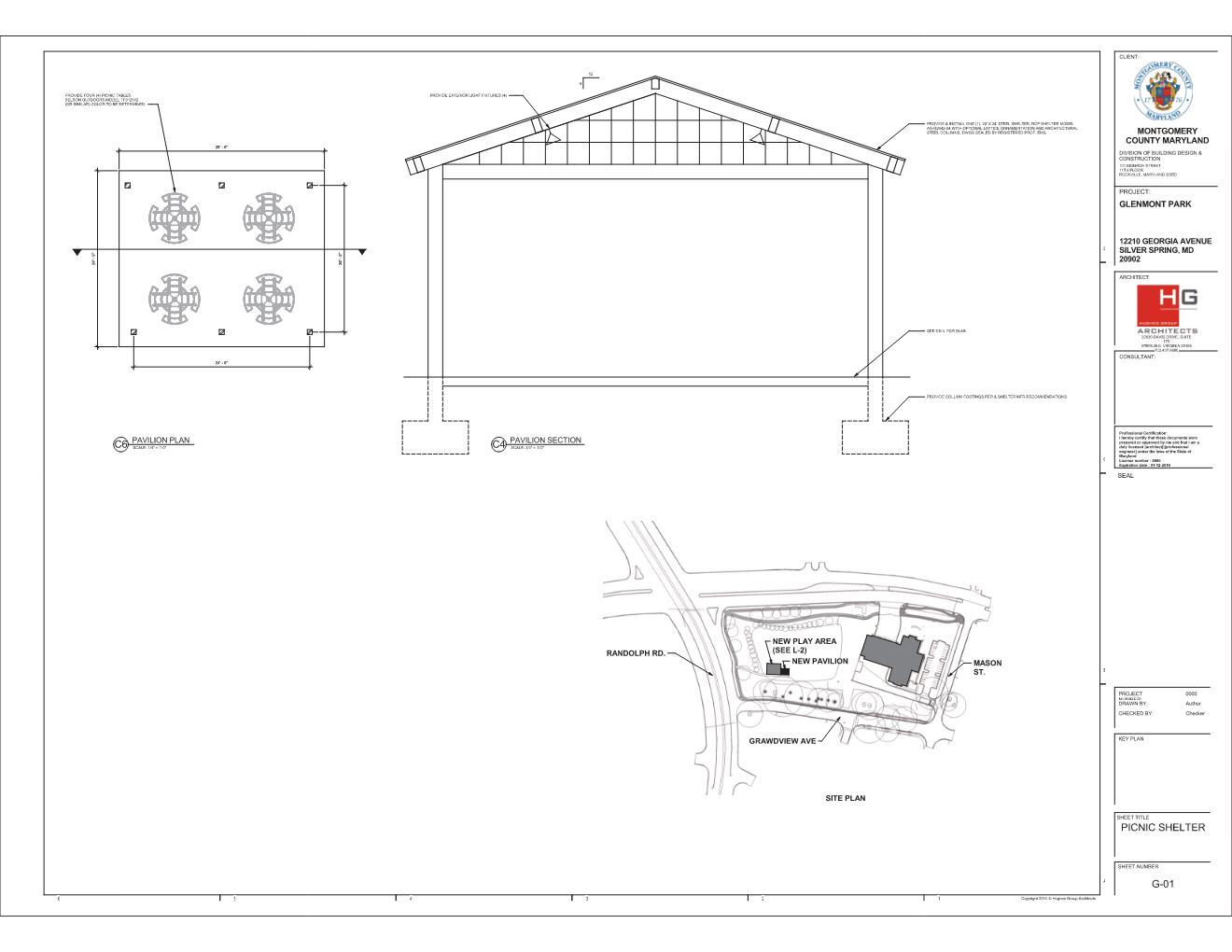
Glenmont Pavilion at Glenmont Forest Community Park
Project Team
Contractor
Walker Willis Corp.Montgomery County Government
Department of General Services
Current Phase: Construction completed March 2021
Building Permits have been issued and construction has commenced. The prefabricated pavilion structure has been ordered and estimated to be delivered week of 9/28/20. The playground equipment has been ordered and estimated to be delivered mid-October. The playground surface has been ordered and estimated to be delivered beginning of November.
This project will provide a public space for citizens to enjoy the open space adjacent to Glenmont Fire Station #18. Currently planned is a pavilion with seating area adjacent to a playground.
