White Flint Fire Station #23
Montgomery County Government
Department of General Services
Division of Building Design & Construction
Division Chief: Hamid Omidvar, AIA[email protected]
Section Chief: Randall Hawkins
Project Manager: Golnar Ershad
Architect / Engineer
Grimm + Parker, Inc.Contractor
TBDFor operations inquiries. Please contact.
Montgomery Fire & Rescue Services
Fire Non-Emergency, 240-683-6520
Police Non-Emergency, 301-279-8000
Current Phase: Design
Design started in FY24 with construction programmed to begin in Fall 2026. Project completion is anticipated in Fall 2028.
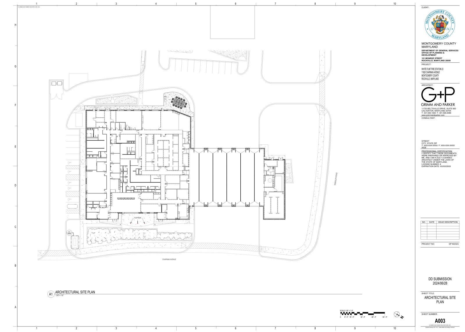
The project is currently in the construction documents phase. The new station will be constructed in accordance with the general square footage specifications of the prototype program. The building will be a one-story fire station with 5 bays located at the corner of Randolph Road and Chapman Avenue. The project will house fire and rescue and police functions. The project is required to meet IGCC requirements, and a net zero study will be done to look at the feasibility of making the building net zero.
This Fire Station will include apparatus bays, dormitory and support space, private bunkrooms, administrative offices, and meeting/training rooms. Parking requirements will be met on site to the greatest extent possible.
Site constraints for this project include a significant Washington Metropolitan Area Transit Authority easement which bisects the site running north/south through the mid-parcel. The building footprint is designed to avoid encounter with the underground metro transit.
Architectural and Construction Images
Architectural and Construction Images
