Gaithersburg Fire Station 8, Female Facility Upgrade
Notice: Project Completed
Montgomery County Government
Department of General Services
Division of Building Design & Construction
Division Chief: Hamid Omidvar, AIA[email protected]
Section Chief: Ali Davoodi
Project Manager: Gary Colton
Architect / Engineer
Design / BuildContractor
CDCI, Inc.For operations inquiries. Please contact.
Montgomery County Fire & Rescue Services240-883-8520
Current Phase: Completed
The contractor has completed the female facility upgrade.
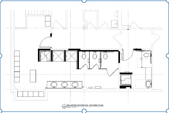
The purpose of this project is to build a new women's locker room, restroom, and showers along with a new unisex restroom. In order to do this, fire and rescue equipment storage will be moved from the basement to the mezzanine in Phase 1, the women's locker room, restroom, and showers will be built where the equipment storage was located in Phase 2, and a storage room and unisex restroom will be built where the old women's lockers and shower were located in Phase 3.
Architectural and Construction Images
Architectural and Construction Images
