Potomac Library Refurbishment
Montgomery County Government
Department of General Services
Division of Building Design & Construction
Division Chief: Hamid Omidvar, AIA[email protected]
Section Chief: Randall Hawkins
Project Manager: Gary Colton
Architect / Engineer
Hughes Group Architects, Inc.Contractor
CDCI, Inc.For operations inquiries. Please contact.
Montgomery County Public Libraries
240-777-0002
Current Phase: Construction
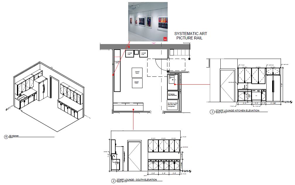
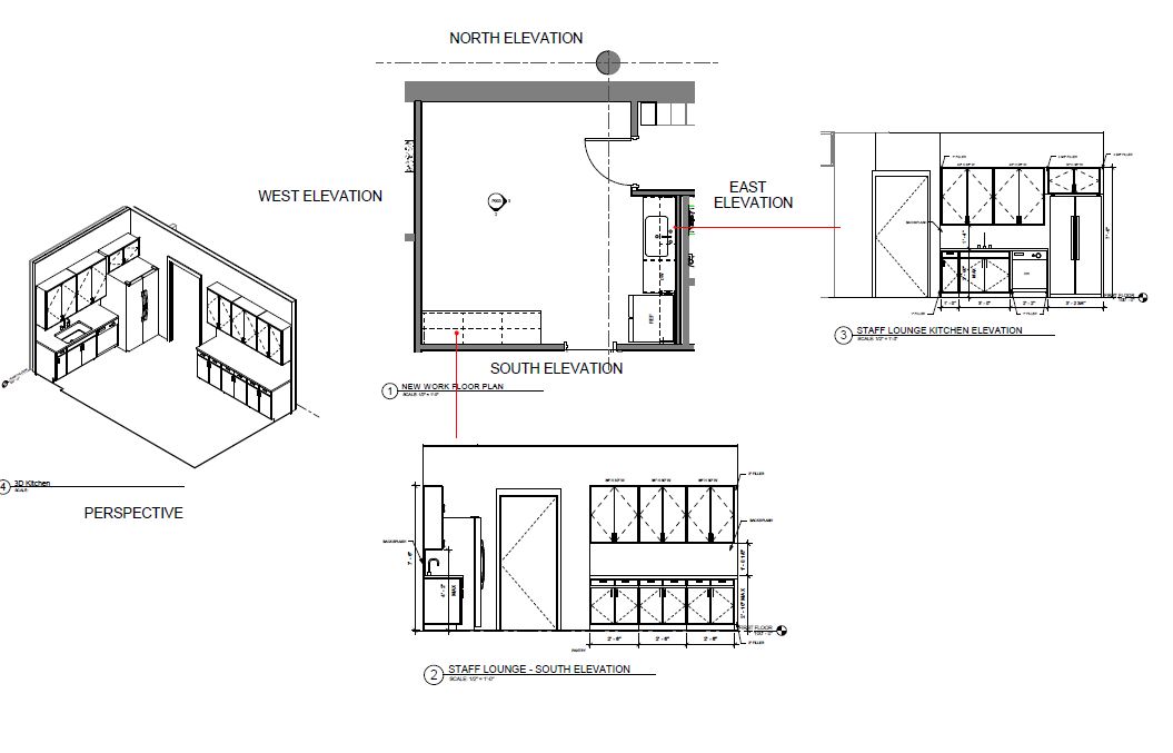
Renovation of the staff lounge started on November 20, 2023 was completed on January 4th, 2024.
The County has retained Hughes Group Architects to design the Potomac Library Refurbishment. The scope of work consists of addressing the findings of the Potomac Library Facility Assessment which includes ADA remediations, building systems remediation, and improving the library by creating a single service desk, redesigning the quiet study room, renovating the restrooms, replacing the storefront entrances, new carpeting and paint, all new furniture and some shelving, and various other improvements.
New Kitchen Renovation Images
Architectural and Construction Images
New Kitchen Design - download Final Design
