Parking Facilities - Silver Spring


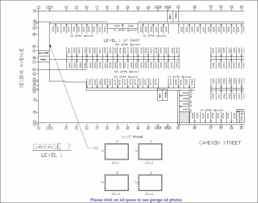
Cameron - Second Garage (Garage 7)

Garage 7 - Cameron Garage

Location: 8530 Cameron Street, Silver Spring
Entrances: Cameron St. and Fenwick Ln.

1,384 vehicle spaces

Garage Traffic

  • Daily: 2,202
  • Weekly: 15,417
  • Monthly: 66,295

Nestled between Montgomery County’s District Courthouse and the office and residential buildings lining Georgia Avenue, the Cameron-Second Garage is considered the primary public parking facility for courthouse visitors and area office workers.

5 Ad spaces

  • G7-1 Sold
  • G7-2 Sold
  • G7-3 Sold
  • G7-4 Sold
  • G7-5 Sold

Click below to see Garage Plan & Ad spaces

Garage 7 Plan

Click here for Garage Advertising Guidelines

Click here for Garage Advertising Request Form

Click here to see Garage Ad photos

Town Square Garage (Garage 61)

Garage 61 - Town Square Garage

Location: 801 Ellsworth Dr, Silver Spring
Entrances: Ellsworth Dr. and Roeder Rd.

1,276 vehicle spaces

Garage Traffic

  • Daily: 2,210
  • Weekly: 15,471
  • Monthly: 66,528

A mixed-use parking facility with an active street level that includes national merchants and a pedestrian bridge connecting to a newly renovated five-story shopping mall, the Town Square Garage bustles seven days a week. The garage also serves as the primary parking option for the Silver Spring Civic Center which hosts dozens of events and conferences annually.

7 ad spaces

  • G61-1 Sold
  • G61-2 Sold
  • G61-3 Sold
  • G61-4 Sold
  • G61-5 Sold
  • G61-6 Pending Approval
  • G61-7 Sold

Click below to see Garage Plan & Ad spaces

Garage 61 Plan

Click here for Garage Advertising Guidelines

Click here for Garage Advertising Request Form

Click here to see Garage Ad photos

Wayne Avenue Garage (Garage 60)

Wayne Avenue Garage

Location: 921 Wayne Ave, Silver Spring
Entrances: Wayne Ave. & Ellsworth Ave.

1,693 vehicle spaces

Garage Traffic

  • Daily: 3,389
  • Weekly: 23,728
  • Monthly: 102,031

In the center of downtown Silver Spring surrounded by restaurants, retail, theatres, a hotel and the new Silver Spring Library, the Wayne Avenue Garage is active day and night while hosting
a wide-ranging demographic mix.

Garage Plan & Ad spaces - COMING SOON